当前位置: 首页 > 产品大全 > 89㎡现代简约二居 巧思布局,打造通透舒适理想家

89㎡现代简约二居 巧思布局,打造通透舒适理想家

89㎡现代简约二居 巧思布局,打造通透舒适理想家

在现代都市生活中,89平方米的二居室是许多家庭的理想选择。它面积适中,既能满足基本的生活需求,又不会带来过大的空间与维护压力。如何将这样一个空间打造成既符合现代审美,又极具实用性与舒适度的家?本案例通过精心的平面设计与现代简约风格的贯彻,交出了一份出色的答卷。

一、 平面布局:通透与功能并重

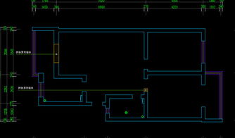
本套案例的原始户型较为方正,但存在公共区域略显局促、部分空间利用率不高等常见问题。设计师通过以下关键改动,实现了空间的最大化利用与动线优化:

  1. 客餐厅一体化:拆除客厅与餐厅之间的非承重隔墙,打造开阔的LDK(客厅、餐厅、厨房)空间。这不仅引入了更多自然光线,让整个公区显得明亮宽敞,也增强了家庭成员间的互动交流。
  2. 厨房优化:采用半开放式厨房设计,结合定制岛台或吧台。既有效隔绝了油烟,又作为餐桌的延伸,增加了操作与收纳空间,成为空间中的视觉焦点之一。
  3. 主卧功能升级:合理利用主卧面积,规划出独立的步入式衣柜区域,满足衣物收纳需求,使睡眠区更纯粹宁静。
  4. 次卧多功能化:次卧设计兼具书房与客卧功能,采用榻榻米结合定制书柜/衣柜的形式,极大提升了空间利用率,适应未来多种生活场景变化。
  5. 卫生间干湿分离:将洗手台外置,实现彻底的干湿分离,方便早晚高峰期使用,也提升了空间质感。

二、 风格与视觉效果:简约不简单

整体风格定位为现代简约,核心在于“减”与“藏”,营造出宁静、有序的空间氛围。

  • 色彩基调:以大面积的中性色(如浅灰、米白、原木色)为背景,奠定舒缓、包容的基调。局部通过沙发、挂画、绿植或单件家具注入少量深灰、墨绿或暖橙作为跳色,瞬间激活空间活力,层次分明。
  • 材质运用:注重材质的搭配与质感。木地板或木纹砖带来温润感;墙面采用浅色乳胶漆或艺术涂料,简约而有细节;搭配哑光烤漆板、长虹玻璃、金属线条等元素,在光线下呈现丰富的光影变化,精致感十足。
  • 照明设计:摒弃单一主灯,采用无主灯设计。通过嵌入式筒灯、磁吸轨道灯提供基础照明,搭配落地灯、壁灯、线性灯带进行重点与氛围照明。灯光层次丰富,可根据不同场景和心情灵活调节,极大地提升了空间的氛围与高级感。
  • 家具与收纳:家具线条利落流畅,体量感适度。全屋定制嵌入式柜体(如电视墙整面收纳柜、玄关鞋柜、卧室衣柜),颜色与墙面协调,实现“隐形”收纳,将生活杂物尽数藏起,视觉上极度清爽整洁。

三、 空间亮点赏析

  • 玄关:一组顶天立地的玄关柜,中间与底部留空,嵌入感应灯带,方便换鞋与放置随手物品,实用且充满归家仪式感。
  • 客厅:柔软的模块沙发可自由组合,背景墙或许是一幅抽象几何画,或许是一面简约的格栅造型。阳台打通包入客厅,铺设地台形成一处休闲阅读角,最大化引入阳光与风景。
  • 餐厨区:岛台与餐桌相连,形成流畅的操作与用餐动线。简约的吊灯聚焦于餐桌上方,食物与家人成为最好的装饰。
  • 卧室:背景墙可能采用静谧的色调或柔软的硬包材质,搭配舒适床品和遮光窗帘,营造绝佳的睡眠环境。灯光柔和,无刺眼眩光。

这套89㎡的现代简约二居室案例证明,通过科学的平面规划与克制的设计表达,中小户型同样可以拥有开阔的视野、流畅的动线、充沛的收纳和高级的居住体验。它不追求繁复的装饰,而是着眼于生活的本质需求,用简约的设计语言,为居住者打造出一个能真正放松身心、承载未来生活的温暖容器。

(注:本文基于常见的现代简约二居设计理念阐述,具体效果需结合实地户型、采光及个人需求由专业设计师实现。土巴兔装修网等平台上有大量类似户型的效果图与实景案例可供参考。)


如若转载,请注明出处:http://www.fbqpd.com/product/46.html

更新时间:2026-03-01 16:29:19